管理番号:11683669
新宿区西落合1丁目
価格 交通 専有面積 間取り 階数 / 所在階
6,990 万円 都営大江戸線落合南長崎駅 徒歩7 63.72m² 3LDK 6階 / 2階部分
おすすめポイント
  • 閑静な住宅地
  • 駅徒歩10分以内
  • 浴室乾燥機
  • 追い焚き風呂
  • 収納充実
  • TVモニタ付インターホン
  • 内装リフォーム
  • 温水洗浄便座
  • システムキッチン
  • 食器洗乾燥機
  • 24時間換気システム
  • 加藤 秋人
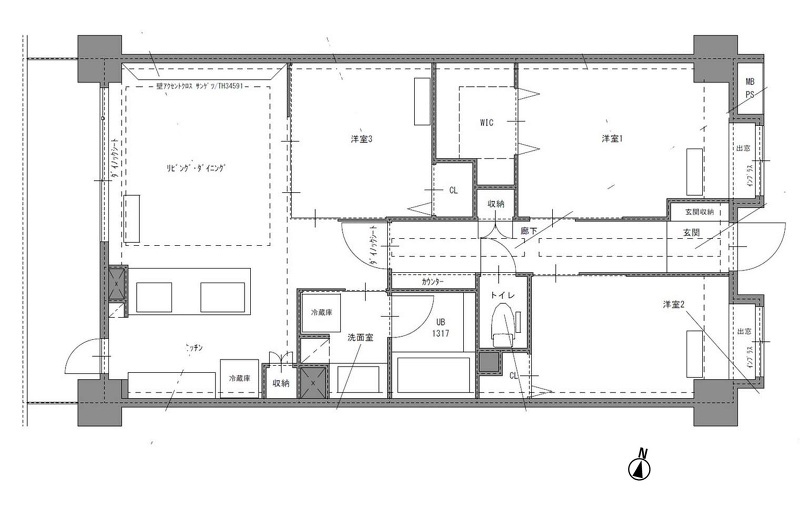
  • 私がご担当します LDK約12.0帖の3LDK、専有面積63.72m2のファミリータイプ。
    2階部分・南西向きにつき採光良好。室内リフォーム完成済で快適にお住まい可能。
    「落合南長崎」駅徒歩7分・「東長崎」駅徒歩15分。複数路線利用可能な都心へのアクセス便利な立地。
  • メリット
  • メリット理由:3路線利用可能
  • デメリット

最寄り駅周辺のご案内

住宅ローンのご相談も承ります

金利

預金

返済
年数

月々のお支払いは0円になります

※返済金額はあくまでも目安となります。詳細は弊社までお問い合わせください。

※住宅購入では、物件資金とは別に諸費用が必要です。(火災保険、税金、ローン費用等)

※2025年4月時点の金利額での計算となります。

物件概要

マンション名 ライオンズガーデン哲学堂
所在地 新宿区西落合1丁目
交通 都営大江戸線「落合南長崎」駅徒歩7分
交通2 西武池袋線「東長崎」駅徒歩15分
交通3 西武新宿線「新井薬師前」駅徒歩16分
その他交通 西武新宿線「新井亜薬師前」駅徒歩16分
総戸数 全20戸
引渡時期 相談 専有面積 63.72m²
バルコニー面積 8.26m²/西側 ルーフバルコニー面積
テラス面積 専用庭面積
建物構造 鉄筋コンクリート造6階建て 所在階 2階部分
築年月 1996年9月築 新築・中古 中古
間取り 3LDK 間取り詳細
現況 空室 土地権利 所有権
用途地域1/2 / 借地料
駐車場 あり 駐車場料金 27,000円~30,840円
町会費 インターネット使用料
管理形態 全部委託 管理人 巡回
管理会社 施工会社
管理費 16,080円/月 修繕積立金 30,840円/月
その他費用
取引態様 媒介
内装リフォーム年月 外装リフォーム年月
学校区 小学校区:新宿区立落合第六小学校 距離:622m
中学校区:新宿区立落合第二中学校 距離:621m
設備 都市ガス    公営水道  排水(下水)
法令上の制限
備考 国土法届出:不要
管理組合:あり

条件に近い物件

  • 新宿区中落合2丁目
  • マンション
  • 5,280万円
  • 中井駅 徒歩7
  • 新宿区中落合2丁目
  • 新宿区西落合3丁目
  • マンション
  • 8,990万円
  • 落合南長崎駅 徒歩1
  • 新宿区西落合3丁目
  • 新宿区中落合2丁目
  • マンション
  • 7,880万円
  • 下落合駅 徒歩4
  • 新宿区中落合2丁目
  • 新宿区上落合2丁目
  • マンション
  • 7,199万円
  • 中井駅 徒歩2
  • 新宿区上落合2丁目
  • この物件が理想のマイホームに
    近いお客様は…

    リクエストフォームよりお問い合わせください。
  • 物件リクエスト
  • 私たちがより理想に近い物件を探して見せます!!

上へ戻る