| 価格 | 交通 | 専有面積 | 間取り | 階数 / 所在階 |
|---|---|---|---|---|
| 7,290 万円 | 西武新宿線新井薬師前駅 徒歩6分 | 72.87m² | 3LDK | 7階 / 2階部分 |
月々のお支払いは0円になります
※返済金額はあくまでも目安となります。詳細は弊社までお問い合わせください。
※住宅購入では、物件資金とは別に諸費用が必要です。(火災保険、税金、ローン費用等)
※2025年4月時点の金利額での計算となります。
| マンション名 | パシフィックニュー中野 | ||
|---|---|---|---|
| 所在地 | 中野区新井4丁目 | ||
| 交通 | 西武新宿線「新井薬師前」駅徒歩6分 | ||
| 交通2 | 中央線「中野」駅徒歩16分 | ||
| 総戸数 | 全90戸 | ||
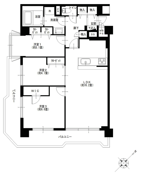
| 引渡時期 | 相談 | 専有面積 | 72.87m² |
| バルコニー面積 | 18m²/南東側 | ルーフバルコニー面積 | |
| テラス面積 | 専用庭面積 | ||
| 建物構造 | 鉄筋コンクリート造7階建て | 所在階 | 2階部分 |
| 築年月 | 1977年11月築 | 新築・中古 | 中古 |
| 間取り | 3LDK | 間取り詳細 | |
| 現況 | 空室 | 土地権利 | 所有権 |
| 用途地域1/2 | 近隣商業地域/ | 借地料 | |
| 駐車場 | 敷地内にあり | 駐車場料金 | 20,000円 |
| 町会費 | インターネット使用料 | ||
| 管理形態 | 全部委託 | 管理人 | 日勤 |
| 管理会社 | 太平洋興発(株) | 施工会社 | |
| 管理費 | 15,680円/月 | 修繕積立金 | 18,730円/月 |
| その他費用 | 取引態様 | 媒介 | |
| 内装リフォーム年月 | 2026年4月 箇所:キッチン、浴室、トイレ、壁、床 | 外装リフォーム年月 | |
| 学校区 |
小学校区:中野区立令和小学校 中学校区:中野区立第五中学校 |
||
| 設備 | 都市ガス 公営水道 排水(下水) | ||
| 法令上の制限 | |||
| 備考 |
国土法届出:不要 |
||

| ごみ | 家庭ごみ回収 | 無料 |
|---|---|---|
| 資源ごみ回収奨励制度 | 〇 | |
| 育児・ 出産 |
妊娠・出産に関する助成金 | 〇 |
| 子ども医療費助成 | 18歳に達する日以後の最初の3月31日まで | |
| 児童手当 | 18歳に達する日以後の最初の3月31日まで | |
| 保育所待機児童数 | 0人(令和6年4月1日現在) | |
| 私立幼稚園入園料・保育料補助金 | 〇 | |
| 学童クラブ対象学年 平日・土曜実施時間 |
小学校1年生から3年生まで。 平日は午後7時まで。土曜日は午前8時から午後7時まで。 |
|
| 教育資金金融/奨学金制度 | 〇 | |
| 福祉 | 健康診断/ガン診断 | 関連情報はこちら |
| 介護保険料基準額 | 6,266円 | |
| 高齢者福祉他特色 | 関連情報はこちら |