| 価格 | 交通 | 土地面積 | 建物面積 | 間取 |
|---|---|---|---|---|
| 7,699 万円 | 中央線荻窪駅 徒歩12分 | 101.98m² | 92.74m² | 4LDK |
月々のお支払いは0円になります
※返済金額はあくまでも目安となります。詳細は弊社までお問い合わせください。
※住宅購入では、物件資金とは別に諸費用が必要です。(火災保険、税金、ローン費用等)
※2025年4月時点の金利額での計算となります。
| 物件名 | 桃井1丁目中古戸建 | ||
|---|---|---|---|
| 所在地 | 杉並区桃井1丁目 | ||
| 交通 | 中央線「荻窪」駅徒歩12分 | ||
| 交通2 | 西武新宿線「井荻」駅バス8分 「清水一丁目」停歩2分 | ||
| 交通3 | 西武新宿線「下井草」駅バス16分 「清水一丁目」停歩2分 | ||
| その他交通 | 西武新宿線「下井草」駅バス16分[清水一丁目]停歩2分 | ||
| 総戸数 | 全1戸 | 販売戸数 | 1戸 |
| 土地面積 |
実測 101.98m² |
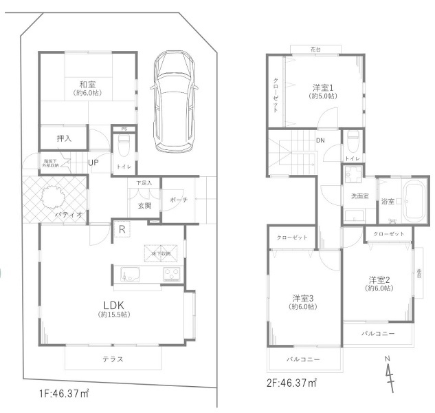
建物面積 | 92.74m² |
| 間取り | 4LDK | 建物構造 | 木造2階建て |
| 築年月 | 2005年1月築 | 間取り詳細 | |
| 現況 | 空家 | 引渡時期 | 相談 |
| 土地権利 | 普通賃借権 | 借地料 | 30,000円 19年3ヶ月残存期間(2045年2月7日まで) 権利金0円 |
| 私道面積 | なし | セットバック面積 | なし |
| 都市計画 | 市街化区域 | 地目 | 宅地 |
| 用途地域1 | 第一種低層住居専用地域 | 用途地域2 | |
| 建ぺい率1/容積率1 | 50%/100% | 建ぺい率2/容積率2 | -/- |
| 建築確認番号 | 開発許可番号 | ||
| 駐車場 | あり | 取引態様 | 媒介 |
| 不適合接道 | 無 | 接道状況 | 角地 |
| 町会費 | その他費用 | ||
| 内装リフォーム年月 | 2025年12月 箇所:キッチン、浴室、トイレ、床 | 外装リフォーム年月 | |
| 学校区 |
小学校区:杉並区立桃井第一小学校 距離:500m 中学校区:杉並区立井荻中学校 距離:1000m |
||
| 接道詳細 | 東5.4m公道 北4m私道 | ||
| 設備 | 都市ガス 公営水道 排水(下水) | ||
| 法令上の制限 | |||
| 備考 |
地勢:平坦 国土法届出:不要 駐車場 車庫:カースペース |
||

| ごみ | 家庭ごみ回収 | 無料 |
|---|---|---|
| 資源ごみ回収奨励制度 | 〇 | |
| 育児・ 出産 |
妊娠・出産に関する助成金 | 〇 |
| 子ども医療費助成 | 18歳に達する日以後の最初の3月31日まで | |
| 児童手当 | 18歳に達する日以後の最初の3月31日まで | |
| 保育所待機児童数 | 0人(令和6年4月現在) | |
| 私立幼稚園入園料・保育料補助金 | 〇 | |
| 学童クラブ対象学年 平日・土曜実施時間 |
小学校1年生から6年生まで。 平日は下校後から午後6時まで。(延長午後7時まで)土曜日は午前8時30分から午後5時まで |
|
| 教育資金金融/奨学金制度 | 〇 | |
| 福祉 | 健康診断/ガン診断 | 関連情報はこちら |
| 介護保険料基準額 | 6,400円 | |
| 高齢者福祉他特色 | 関連情報はこちら |